Home
4 bedroom luxury home plan
beautiful villa
Latest Home Plans
Slider
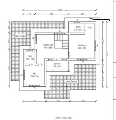
Luxury 4 Bedroom Clonial Contemporaray Villa Design with Free Plan
Subscribe to:
Post Comments
(
Atom
)




0 comments:
Post a Comment