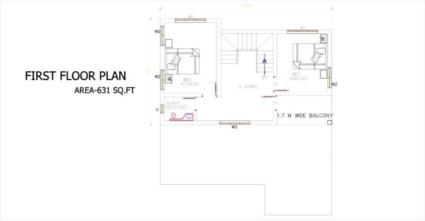
4 Bedroom Home with Free Plan
Specifications
Plot - 10 Cent
Area - 1670 Sqft
Budget - 40 Lakhs
Sit Out
Living
Dining
Kitchen
Work Area
4 Bedroom
Architect- Akhil Dev D Arcade, Ponkunnam
Mob- 9947441801
Contractors- Achu, Cyril
Foresight Homes
Mob - 9947137756
Article Source & Photo Courtesy : MANORAMAONLINE






0 comments:
Post a Comment