3 Bedroom Modern Single Floor Home with Free Plan

 


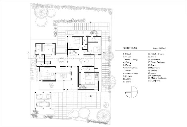
Specifications

Plot - 22 Cent

Area - 2950 Sqft

Porch

Sit Out

Formal Living

Family Living

Dining

Kitchen

Work Area

3 Bedroom

Bathrooms










Designer Details

Architect- Sharon Antony 

Dreamscape, Kodungallur

Contact - 094005 04582

Email - dreamscapearc@gmail.com


Share on Google Plus

About Kerala Homes

We provide free home designs and plans escpecially for Kerala. We will be posting latest house plans on regular basis. If any stories or images that appear on the site are in violation of copyright law, please mail us to works@keralahomeplanners.com and we will remove the offending information on time.

0 comments:

Post a Comment