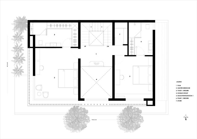
3.4 Cent 4 Bedroom Minimalist Home with Free Plan

 



Specifications

Plot - 3.4 Cent
Area - 2250 Sqft
Sit Out
Living
Pooja Area
Dining
Kitchen
Store
Work Area
4 Bedroom





















𝗗𝗘𝗦𝗜𝗚𝗡𝗘𝗥 𝗗𝗘𝗧𝗔𝗜𝗟𝗦:

𝐃𝐞𝐬𝐢𝐠𝐧 𝐅𝐢𝐫𝐦: IK Architects

𝐏𝐫𝐢𝐧𝐜𝐢𝐩𝐚𝐥 𝐀𝐫𝐜𝐡𝐢𝐭𝐞𝐜𝐭𝐬:Ar. Ishank Patel, Ar. Krimmy Patel

𝐄𝐦𝐚𝐢𝐥: ikarchitects2021@gmail.com


Share on Google Plus

About Kerala Homes

We provide free home designs and plans escpecially for Kerala. We will be posting latest house plans on regular basis. If any stories or images that appear on the site are in violation of copyright law, please mail us to works@keralahomeplanners.com and we will remove the offending information on time.

0 comments:

Post a Comment